cheapwatcher Geplaatst: 21 oktober 2020 Auteur Geplaatst: 21 oktober 2020 Die meter kast zit als je door de voordeur naar binnenkomt gelijk rechts. Dus het mooiste is om daar de sat kabels te laten uitkomen Visiosat Big Bisat (0.8W, 5W, 9E, 13E,19.2E,23.5E,28.2E) 3 x Inverto quad, 2 x Alps quad, 1 x Venton rocket 1 x technisat quad 2 x Disecq 1/8 1 x Diseqc 1/10 VU+ Ultimo 4k DVB-S FBC/DVB-C FBC,WD AV GP WD20EURS, 2TB @ Panasonic tx-50exw784 + Logitech Harmony 665 Qviart Lunix 4K @ Panasonic TX-L42E5 + Logitech Harmony 700 Ziggo start CI+
Tonskidutch Geplaatst: 21 oktober 2020 Geplaatst: 21 oktober 2020 ja lijkt me prima plan, zou zeggen nu nog verhuizen! succes Revelations, Sunset Mix Alina Kiya, Full Intention
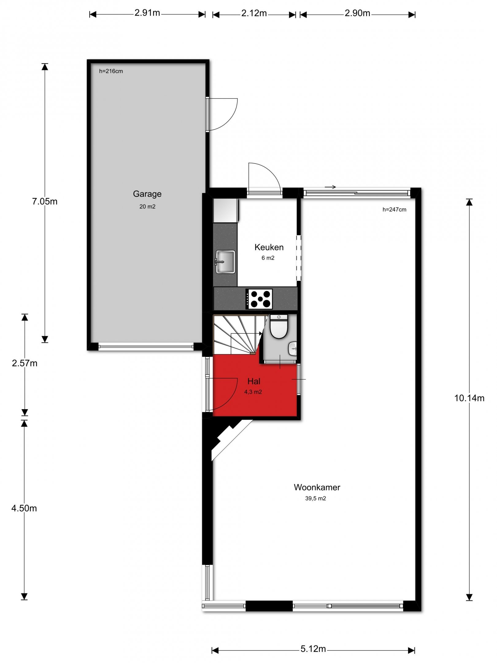
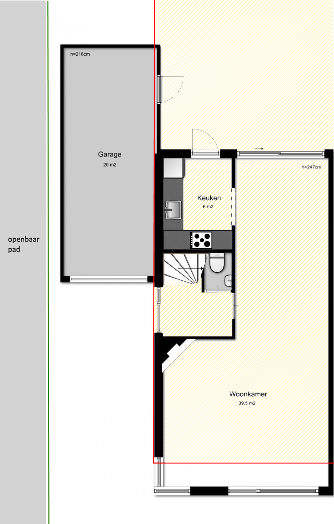
Alex1970 Geplaatst: 21 oktober 2020 Geplaatst: 21 oktober 2020 23 uren geleden, cheapwatcher zei: Buitenom kan natuurlijk ook, maar ik wilde de schotel juist zo dicht mogelijk tegen het huis aanzetten, zodat het niet zo opvalt. Bijgevoegd 2 afbeeldingen. Hoe zit het dan eigenlijk met de plaatsing binnen het achtererfgebied? Het is mij nl. nog steeds onduidelijk of (aanpandige) bijgebouwen meetellen in de bepaling van het voor- en achtererfgebied. Dreambox DM920: 2x Triple tuner (2x DVB-S2X multistream + DVB-C/T2) OpenPLi 9 Xtrend ET10000: 1x DVB-S2, 2x DVB-C/T2, IPTV OpenPLi 9 VU+ Duo / Dreambox DM800 / TBS 5925 Channel Master 180cm offset: 39.0°E-37.6°W, Channel Master 120cm offset: 23.5°E-8°W SAB 97 schotel 45.1°E-60°E, 80cm vast: 28.2°E/23.5°E/19.2°E/13°E | DVB-T/DAB: VHFIII/UHF combi-antenne op zolder.
Tonskidutch Geplaatst: 21 oktober 2020 Geplaatst: 21 oktober 2020 dat is een hele interessante vraag! http://www.vergunningsvrijbouwen.com/algemeen/achtererfgebied-bepalen/achtererfgebied-bepalen/ 1 meter achter de voorgevel ook wel de rooilijn genaamd Revelations, Sunset Mix Alina Kiya, Full Intention
Alex1970 Geplaatst: 21 oktober 2020 Geplaatst: 21 oktober 2020 (aangepast) Aan de zijkant grenzend aan een openbaar toegankelijke doorgang ligt m.i. de rooilijn op de gevel van het hoofdgebouw, niet een meter erachter, dat is aan de voorzijde van de woning. De garage is m.i. geen onderdeel van het hoofdgebouw. Dan blijft dus over het geel gearceerde gebied in bijgevoegde tekening. Maar ik hoop dat ik het mis heb en dat de garage wel meetelt. 27 minuten geleden, Tonskidutch zei: dat is een hele interessante vraag! http://www.vergunningsvrijbouwen.com/algemeen/achtererfgebied-bepalen/achtererfgebied-bepalen/ 1 meter achter de voorgevel ook wel de rooilijn genaamd Op alle tot nu toe gevonden voorbeelden komen bijgebouwen niet voor. 21 oktober 2020 aangepast door Alex1970 Dreambox DM920: 2x Triple tuner (2x DVB-S2X multistream + DVB-C/T2) OpenPLi 9 Xtrend ET10000: 1x DVB-S2, 2x DVB-C/T2, IPTV OpenPLi 9 VU+ Duo / Dreambox DM800 / TBS 5925 Channel Master 180cm offset: 39.0°E-37.6°W, Channel Master 120cm offset: 23.5°E-8°W SAB 97 schotel 45.1°E-60°E, 80cm vast: 28.2°E/23.5°E/19.2°E/13°E | DVB-T/DAB: VHFIII/UHF combi-antenne op zolder.
Tonskidutch Geplaatst: 25 oktober 2020 Geplaatst: 25 oktober 2020 (aangepast) Voor een dergelijke vaststelling van de feiten gebruikt men de website Ruimtelijke plannen.nl en daar vindt U per perceel (en adres natuurlijk) de "regels". Dat is het zogenaamde vastgestelde of vingerende Bestemmingsplan. In sommige gevallen mag je ook op een bijgebouw een terras bouwen met een 1,5 meter hoge afscheiding naar de perceelsgrens. voorbeeldje van een deel van die regels Quote 17.2 Bouwregels Op de in lid 17.1 bedoelde gronden mogen uitsluitend bouwwerken worden gebouwd, met dien verstande dat: ten aanzien van gebouwen (hoofdgebouwen en bijbehorende bouwwerken) geldt dat: per bouwperceel ten hoogste 50% van de gronden mag worden bebouwd met gebouwen en overkappingen; per bouwperceel is ten hoogste 1 hoofdgebouw toegestaan; hoofdgebouwen, inclusief aangebouwde bijbehorende bouwwerken, vrijstaand dienen te worden gebouwd; ter plaatse van de aanduiding 'maximale bouwhoogte' de voorgeschreven maximale bouwhoogte in acht dient te worden genomen; ter plaatse van de aanduiding 'twee-aan-een' hoofdgebouwen en/of de aangebouwde bijbehorende bouwwerken tevens aan elkaar gebouwd mogen worden; de bouwhoogte van aan het hoofdgebouw gebouwde bijbehorende bouwwerken is maximaal 0,30 meter boven de vloer van de tweede bouwlaag van het hoofdgebouw, kelders en onderbouwen niet daaronder begrepen, een en ander tot een maximale hoogte van 5 meter; in afwijking van de onder f bepaalde maximale bouwhoogte zijn dakterrassen toegestaan op aan het hoofdgebouw gebouwde bijbehorende bouwwerken, met dien verstande dat deze terrassen aan weerszijden (voor zover deze zijde(n) zich op minder dan twee meter van de grenslijn van het erf (de zijdelingse perceelsgrens) bevindt (bevinden)) worden afgeschermd met ondoorzichtig materiaal met een hoogte van minimaal 1.50 en maximaal 1.80 meter (dit geldt niet als de eigenaar van het naburige erf toestemming heeft gegeven om een doorzichtige afscherming te plaatsen); de goothoogte van vrijstaande bijbehorende bouwwerken niet meer mag bedragen dan 3 m; ten aanzien van bouwwerken, geen gebouwen zijnde erf- en terreinafscheidingen: bouwhoogte maximaal 2 meter; overige bouwwerken, geen gebouwen zijnde: bouwhoogte maximaal 3 meter. met groet 25 oktober 2020 aangepast door Tonskidutch voorbeeldje Muziekwijk Almere Revelations, Sunset Mix Alina Kiya, Full Intention
cheapwatcher Geplaatst: 17 maart 2021 Auteur Geplaatst: 17 maart 2021 Op 21-10-2020 om 09:43, Tonskidutch zei: ziet er niet zo lastig uit die laagste plank van de beschieting even afnemen en ergens naar binnen boren (die zit dan net ergens onder het plafond) je zou ook tpv luifel boven deur naar binnen en naar de meterkast kunnen gaan maar zoals altijd is die Funda makelaars tekening zonder meterkast wat een % ten dieven Het lijkt er op dat dat afdakje boven de voordeur iets doorloopt en ook nog aanwezig is op de plek waar de meterkast zit. De meterkast zit gelijk rechts als je binnenstapt. Ik vermoed dat het wellicht dan ook mogelijk is om een mooi doorgang te maken door de muur boven het afdakje en dan in de meterkast uit te komen. Zijn er mooie kabeldoorvoordoosjes te koop? Zodat ik 4 coax kabels netjes naar binnen kan verwerken zonder lekkage? Visiosat Big Bisat (0.8W, 5W, 9E, 13E,19.2E,23.5E,28.2E) 3 x Inverto quad, 2 x Alps quad, 1 x Venton rocket 1 x technisat quad 2 x Disecq 1/8 1 x Diseqc 1/10 VU+ Ultimo 4k DVB-S FBC/DVB-C FBC,WD AV GP WD20EURS, 2TB @ Panasonic tx-50exw784 + Logitech Harmony 665 Qviart Lunix 4K @ Panasonic TX-L42E5 + Logitech Harmony 700 Ziggo start CI+
dutchandrew Geplaatst: 17 maart 2021 Geplaatst: 17 maart 2021 (aangepast) Ik zou 2 gaten (20 mm) boven elkaar iets schuin omhoog naar binnen boren , ter plekke van een stootvoeg. In die gaten plaats je dan 3/4 slagvaste buis (19 mm). Als het goed is kun je per buis 2 kabels naar binnen brengen. Als je die buis iets uit de muur laat steken (2-3cm) kun je de buizen afdichten met vulcaniserende tape. 17 maart 2021 aangepast door dutchandrew
Tonskidutch Geplaatst: 18 maart 2021 Geplaatst: 18 maart 2021 uh Quote Omrekentabel: (duims)maten van IJzer en Stalinrichting naar millimeters: 1/2 duims = 21,3 mm 3/4 duims = 26,9 mm 1 duims = 33,7 mm 1 1/4 duims = 42,4 mm 1 1/2 duims = 48,3 mm 2 duims = 60,3 mm 2 1/2 duims = 76,1 mm 3 duims = 88,9 mm 3 1/2 duims = 101,6 mm 4 duims = 114,3 mm er van uitgaande dat je spouwmuur geïsoleerd is met MuPan Steenwol, kun je met een lange steen boor gewoon in een keer doorboren naar binnen en je kabels naar binnen voeren, afdichten met densoband (mbv een ronde lepel) en klaar via een kabeldoorvoerkastje is inderdaad netter die zijn in elke bouwmarkt te koop en bestaan in meerdere formaten en kleuren maar let op, boven een meterkast gaan natuurlijk alle leidingen via vloeren naar de vertrekken dus boren is wel precisiewerk anders kun je ernstige schade veroorzaken. Revelations, Sunset Mix Alina Kiya, Full Intention
cheapwatcher Geplaatst: 18 maart 2021 Auteur Geplaatst: 18 maart 2021 2 uren geleden, Tonskidutch zei: uh er van uitgaande dat je spouwmuur geïsoleerd is met MuPan Steenwol, kun je met een lange steen boor gewoon in een keer doorboren naar binnen en je kabels naar binnen voeren, afdichten met densoband (mbv een ronde lepel) en klaar via een kabeldoorvoerkastje is inderdaad netter die zijn in elke bouwmarkt te koop en bestaan in meerdere formaten en kleuren maar let op, boven een meterkast gaan natuurlijk alle leidingen via vloeren naar de vertrekken dus boren is wel precisiewerk anders kun je ernstige schade veroorzaken. Hoe ziet zo'n doorvoerkastje er uit? Visiosat Big Bisat (0.8W, 5W, 9E, 13E,19.2E,23.5E,28.2E) 3 x Inverto quad, 2 x Alps quad, 1 x Venton rocket 1 x technisat quad 2 x Disecq 1/8 1 x Diseqc 1/10 VU+ Ultimo 4k DVB-S FBC/DVB-C FBC,WD AV GP WD20EURS, 2TB @ Panasonic tx-50exw784 + Logitech Harmony 665 Qviart Lunix 4K @ Panasonic TX-L42E5 + Logitech Harmony 700 Ziggo start CI+
Tonskidutch Geplaatst: 18 maart 2021 Geplaatst: 18 maart 2021 bij voor beeld Revelations, Sunset Mix Alina Kiya, Full Intention
trust Geplaatst: 18 maart 2021 Geplaatst: 18 maart 2021 2 uren geleden, Tonskidutch zei: uh er van uitgaande dat je spouwmuur geïsoleerd is met MuPan Steenwol, kun je met een lange steen boor gewoon in een keer doorboren naar binnen en je kabels naar binnen voeren, afdichten met densoband (mbv een ronde lepel) en klaar via een kabeldoorvoerkastje is inderdaad netter die zijn in elke bouwmarkt te koop en bestaan in meerdere formaten en kleuren maar let op, boven een meterkast gaan natuurlijk alle leidingen via vloeren naar de vertrekken dus boren is wel precisiewerk anders kun je ernstige schade veroorzaken. Dutchandrew heeft het over elektriciteits buis 5/8 (16 mm buiten dia) 3/4 (19 mm ) Het verschil tussen theorie en praktijk is mijn uitdaging . Octagon SF8008 4K Edision Primo IP S2 Dr.HD F16 1.8 m ChannelMaster Offset in tuin 53º E - 45º W Jaeger SMR 1224 Usals met 5 Lnb wisselaar 2x Ka - Ku - C band Lin / Circ 1.2 m Echostar Offset aan schuur 53º E 34.5 W Twoteck Twinrotor met 3 Lnb wisselaar Ku - Ku low - Ka
Tonskidutch Geplaatst: 18 maart 2021 Geplaatst: 18 maart 2021 oooh. Revelations, Sunset Mix Alina Kiya, Full Intention
cheapwatcher Geplaatst: 19 maart 2021 Auteur Geplaatst: 19 maart 2021 Dank. Nog eventjes geduld voor we de sleutel krijgen en dan zal ik ter plekke nog eens goed kijken wat het mooiste/handigste is. Voldoende inspiratie nu. 1 Visiosat Big Bisat (0.8W, 5W, 9E, 13E,19.2E,23.5E,28.2E) 3 x Inverto quad, 2 x Alps quad, 1 x Venton rocket 1 x technisat quad 2 x Disecq 1/8 1 x Diseqc 1/10 VU+ Ultimo 4k DVB-S FBC/DVB-C FBC,WD AV GP WD20EURS, 2TB @ Panasonic tx-50exw784 + Logitech Harmony 665 Qviart Lunix 4K @ Panasonic TX-L42E5 + Logitech Harmony 700 Ziggo start CI+
Aanbevolen berichten
Maak een account aan of log in om te reageren
Je moet een lid zijn om een reactie te kunnen achterlaten
Account aanmaken
Registreer voor een nieuwe account in onze community. Het is erg gemakkelijk!
Registreer een nieuwe accountInloggen
Heb je reeds een account? Log hier in.
Nu inloggen