Ger59 Geplaatst: 7 februari 2022 Geplaatst: 7 februari 2022 Hallo , Wie oh wie kan mij helpen aan de maten van de muurbeugel voor een T90 . Ik weet dat de buis 60mm is,waar het om gaat is de lengte van de buis waar de knik zit en waar de gaten zitten en de lengte van de strippen richting muur. Heb nl nog wat rvs liggen en wil de beugel zelf van dit gaan maken. Groeten Ger
RicardoBelli Geplaatst: 8 februari 2022 Geplaatst: 8 februari 2022 Wat bedoel je precies gaat het om muurbevesteging of om een onderdeel van de antenne zelf ? mvg Ricardo
edbe Geplaatst: 8 februari 2022 Geplaatst: 8 februari 2022 ik zal morgen eens kijken en meten. 2 x KPN TV+ Box & Formuler Z11 Pro
Ger59 Geplaatst: 9 februari 2022 Auteur Geplaatst: 9 februari 2022 13 uren geleden, RicardoBelli zei: Wat bedoel je precies gaat het om muurbevesteging of om een onderdeel van de antenne zelf ? mvg Ricardo Het gaat om de standbuis waar de schotel op gemonteerd word. Hoe die buis aan de muur word bevestigd dat is wel te verzinnen. Waar het om gaat is de lengte van de buis ,waar de knik zit in de buis en de lengte van de strippen/buisjes waarmee het bovenste stuk mee aan de muur word bevestigd. Groeten Ger
Ger59 Geplaatst: 9 februari 2022 Auteur Geplaatst: 9 februari 2022 En wat ik ook graag zou willen weten welke sleutelmaat de bout heeft waarmee de strippen/buizen aan de dikke buis zijn verbonden. Groeten Ger
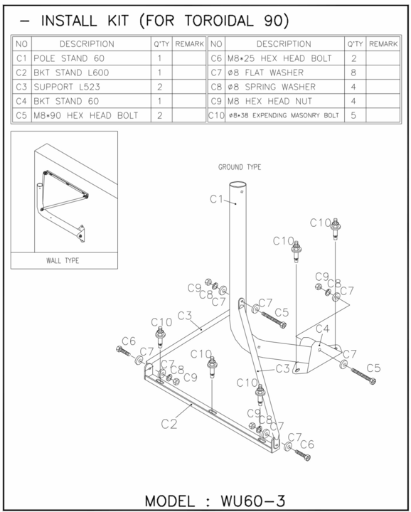
Moderator ceesv Geplaatst: 9 februari 2022 Moderator Geplaatst: 9 februari 2022 Helpt dit? DatenblattWavefrontierWandhalterung.pdf Ik hou zelf de voorkeur geven aan 2 stevige wandbeugels en een stevig stuk 60 mm buis. De originele wandbeugel heb ik nooit gebruikt, is mij te wiebelig. Gaat niet bestaat niet! 65" 4-K OLED, Vu+ Duo 4K SE BT, Vu+ Solo 4K, Rebox-8500, Rebox-8000, Wavefrontier T-90, Satlook Digital NIT, Megasat HD5 Combo Gebruik je een advertentie blocker? Maak dan een uitzondering voor onze website. Zonder advertentie (inkomsten) kan deze site niet voortbestaan.
Ger59 Geplaatst: 9 februari 2022 Auteur Geplaatst: 9 februari 2022 Dat helpt al een heel stuk in de richting,nu nog wat maten erbij en ik kan aan de slag. Het klopt wat je zegt dat deze wat wiebelig is daarom ga ik de delen wat in strip/buis is uitgevoerd om de hoofdbuis aan de muur te bevestigen anders maken zodat deze een heel stuk steviger en minder wiebelig zullen zijn. Groeten Ger
Moderator ceesv Geplaatst: 9 februari 2022 Moderator Geplaatst: 9 februari 2022 De maten staan in de stuklijst. Verder kan je wanneer je zelf wat gaat maken de afmetingen aanpassen aan de hoek van je schotel met de muur. Gaat niet bestaat niet! 65" 4-K OLED, Vu+ Duo 4K SE BT, Vu+ Solo 4K, Rebox-8500, Rebox-8000, Wavefrontier T-90, Satlook Digital NIT, Megasat HD5 Combo Gebruik je een advertentie blocker? Maak dan een uitzondering voor onze website. Zonder advertentie (inkomsten) kan deze site niet voortbestaan.
Ger59 Geplaatst: 9 februari 2022 Auteur Geplaatst: 9 februari 2022 Klopt had ik niet gelijk gezien alleen de lengte van de buis van 60mm maar dat is te achterhalen met wat tekenwerk en meten. Maar als er iemand is wat het ff zou kunnen na meten zou helemaal te gek zijn en bespaard weer wat tekenwerk. Groeten Ger
Moderator ceesv Geplaatst: 9 februari 2022 Moderator Geplaatst: 9 februari 2022 Ik heb net gekeken, ik bezit zo een buis, maar die ligt in Frankrijk. Gaat niet bestaat niet! 65" 4-K OLED, Vu+ Duo 4K SE BT, Vu+ Solo 4K, Rebox-8500, Rebox-8000, Wavefrontier T-90, Satlook Digital NIT, Megasat HD5 Combo Gebruik je een advertentie blocker? Maak dan een uitzondering voor onze website. Zonder advertentie (inkomsten) kan deze site niet voortbestaan.
Ger59 Geplaatst: 9 februari 2022 Auteur Geplaatst: 9 februari 2022 Daar ligt die goed,ff op en neer om te meten 😁😁
minplus Geplaatst: 9 februari 2022 Geplaatst: 9 februari 2022 (aangepast) Ik heb bij de lokale smid een speciale muurbeugel laten maken voor de 90 cm Gregorian en hem laten verzinken. Een plaat met 4 bouten in de muur verankerd. Loodrecht daarop in het midden een vierkante buis en op het uiteinde daar bovenop een ronde buis waar de schotelklem omheen gaat. En onder 45 graden onder dat uiteinde een vierkante buis terug naar de muur waar hij met een kleinere plaat en 2 bouten verankerd zit. Eigen ontwerp en met tekening ingeleverd maar het zou me verbazen als anderen niet ook op dat logische idee zijn gekomen. Werkt super en zit muurvast. PS. De prijs viel incl verzinken erg mee en de smid vond het erg leuk om hem te maken. 9 februari 2022 aangepast door minplus 3x VU+ met Open Pli , 2 Gregorians, 1 Big bisat, 1 Oled en 2 LCD's
Ger59 Geplaatst: 9 februari 2022 Auteur Geplaatst: 9 februari 2022 Ben zelf constructie bankwerker/smid dus als ik dit niet kan maken van RVS of staal dan moet ik mij heel diep schamen,en een beetje lassen en boren dat lukt nog wel hier thuis. En wat Ceesv aanhaalt ivm wiebelig dat is dan op te lossen door wat andere materialen te gebruiken.
Ger59 Geplaatst: 9 februari 2022 Auteur Geplaatst: 9 februari 2022 Daar was ik al achter is gewoon een driehoek met een hoek van 90 graden en een hoek van 45 graden . Met wat tekenen en meten moet ik het wel kunnen fiksen.
Aanbevolen berichten
Maak een account aan of log in om te reageren
Je moet een lid zijn om een reactie te kunnen achterlaten
Account aanmaken
Registreer voor een nieuwe account in onze community. Het is erg gemakkelijk!
Registreer een nieuwe accountInloggen
Heb je reeds een account? Log hier in.
Nu inloggen